☎️ Llámanos al 44 34 10 16 38

📩 contacto@gruponavarro.mx

🇺🇸🇬🇧 English Spoken

Locales en RENTA en Plaza Patio Chapultepec, sobre Artilleros de 1847

Chapultepec Sur, Morelia, Michoacán

  • $380 MXN por m² En Renta
Ver Tour Virtual

Detalles

  • Tipo: Local en centro comercial
  • ID: EB-UM6076
  • Antigüedad: A estrenar

Descripción

En el corazón de una de las zonas con mayor crecimiento comercial y habitacional de Morelia, nace un nuevo concepto de plaza: un espacio diseñado para marcas con identidad, propuestas frescas y un enfoque claro en la experiencia familiar.
Este proyecto busca reunir emprendimientos que conecten con un público moderno, principalmente mamás jóvenes y familias con niños, ofreciendo no solo productos y servicios, sino momentos memorables para celebrar, compartir y disfrutar.
Más que una plaza comercial tradicional, este desarrollo busca convertirse en un punto de encuentro para quienes valoran los detalles, el diseño y el tiempo en familia. Un espacio donde cada visita se sienta especial, y donde cada marca tenga la oportunidad de conectar de forma auténtica con su comunidad.

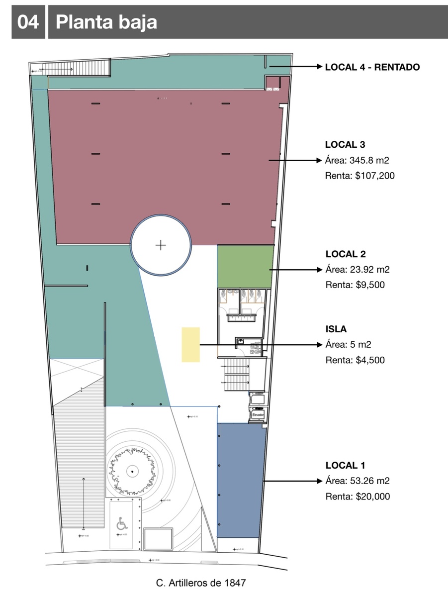
Local 1
53.26m2
$20,000 más IVA

Local 2
23.92m2
$9,000 más IVA

Local 3
345.8m2
107,200 más IVA

Local 4
RENTADO

Local 5
744.12m2
$210,000 más IVA

Local 6
28.80m2
$8,500 más IVA

Cuenta con estacionamiento subterráneo, exclusividad de giro, elevadores, sanitarios y excelente accesibilidad.
Contrato mínimo de 2 años, la entrega de los locales será partir de enero de 2026 para operar en marzo de 2026.

Amenidades

  • Estacionamiento techado
  • Facilidad para estacionarse
  • Accesibilidad para adultos mayores
  • Accesibilidad para personas con discapacidad
  • Circuito cerrado
  • Elevador
Navarro®

Navarro®

EB-UM6076
Imprimir propiedad

Ubicación

Chapultepec Sur, Morelia, Michoacán

Propiedades destacadas